$819,500

Family-Friendly Living with Space, Style & Convenience

Lot 6, 652 Springston Rolleston Road, Rolleston, Selwyn, Canterbury

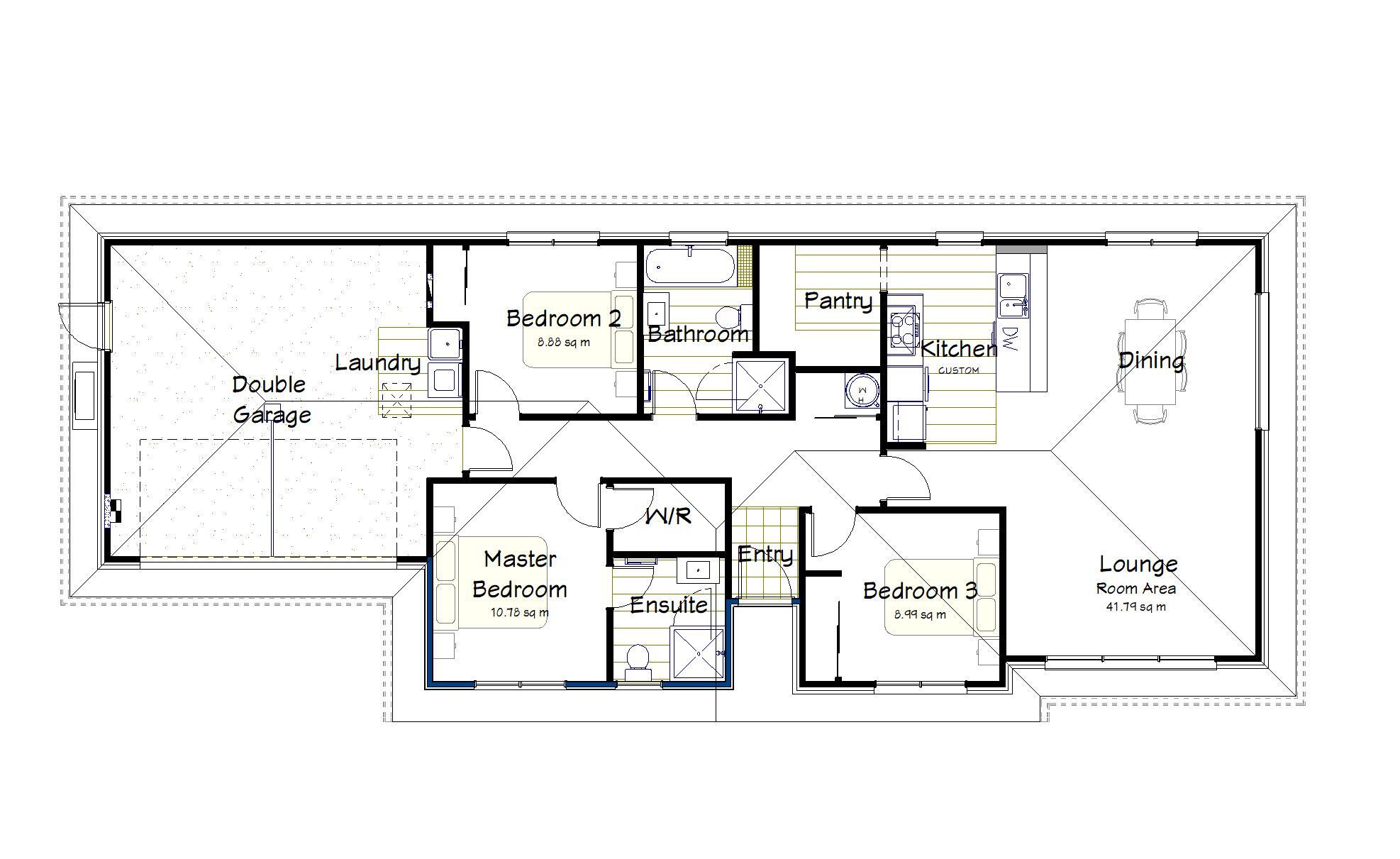
Bed 3 Bed
Bath 2 Bath
Garage 2 Garage
Land Size 361m² Land
Floor Size 152m² Floor
Weekly Rent $630 p/w Rent
Yield 4.0% Yield

Property details

Property ID: E659178503660 | House | Land And Build

This well-designed home offers comfortable modern living with a practical and functional open-plan layout. Featuring three bedrooms and two bathrooms, the master suite provides a private retreat complete with a walk-in wardrobe and ensuite. At the heart of the home, the light-filled kitchen is enhanced by durable TriStone benchtops and a generously sized walk-in pantry, offering excellent storage and convenience for everyday living. The open-plan design allows the kitchen to flow seamlessly into the living and dining areas, creating an inviting space for both relaxing and entertaining. A double garage with an integrated laundry area adds further practicality, completing this appealing and easy-care home. 

Rolleston is an easy 20-30 minute drive to central Christchurch via the Southern Motorway, making daily travel straightforward.  The town has strong local amenities including New World and Countdown supermarkets, cafés and shops at Rolleston Fields, and major facilities like Te Ara Atea library and the Selwyn Aquatic Centre.  With good schools, large green spaces including Foster Park, and growing public transport options, Rolleston offers a convenient, family-friendly lifestyle close to the city.

Built by Golden Homes Canterbury. For over three decades, Golden Homes has built homes loved by Kiwi families and investment customers. Specializing in designing homes suited to the New Zealand lifestyle and climate, Golden Homes ensures a quality home your tenants will love. Equiti customers can trust Golden Homes for a comprehensive investment package with essential fittings and finishes, ready for tenants to move into. Owned by Dean McGuigan, we offer a 2-year Rental Guarantee, ensuring a steady income stream.

Built by

Golden Homes Canterbury