$979,500

Spacious 4-Bedroom Home with Quality Finishes

Lot 782, Wilfield Rise, West Melton, Selwyn

Bed 4 Bed
Bath 2 Bath
Garage 2 Garage
Land Size 650m² Land
Floor Size 181m² Floor
Weekly Rent $770 p/w Rent
Yield 4.1% Yield

Property details

Property ID: E658590165490 | House | Land And Build

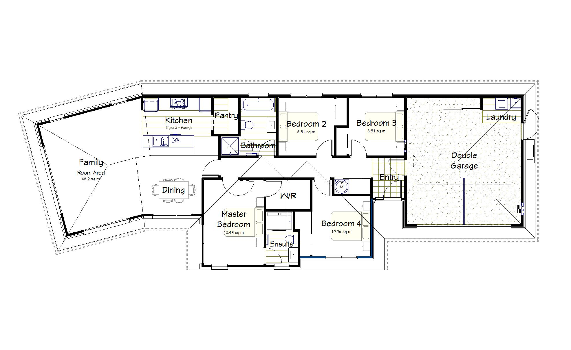
This well-designed home offers comfortable modern living with a practical and family-friendly layout. Featuring four bedrooms and two bathrooms, the spacious master suite provides a private retreat complete with a walk-in wardrobe and stylish ensuite. At the heart of the home, the open-plan living, dining, and kitchen area creates a welcoming space for everyday living and entertaining. The contemporary kitchen is fitted with a durable Tristone benchtop, quality Fisher & Paykel appliances, and a generous pantry, ensuring both style and functionality. The remaining bedrooms are serviced by a well-appointed family bathroom that includes both a bath and separate shower, ideal for busy households. A double garage with an integrated laundry area adds further convenience, completing this thoughtfully designed home. 

West Melton has a strong lifestyle appeal thanks to its village feel while still being just a 20-minute drive to Christchurch's CBD.  West Melton School and Rolleston College (a short drive away) are key drawcards, along with local favourites such as the West Melton Community Centre, library and sports grounds.  With cafes, a local Four Square, childcare centres and the open Canterbury Plains on your doorstep, West Melton offers space, community and convenience in one well-connected location. 

Built by Golden Homes Canterbury. For over three decades, Golden Homes has built homes loved by Kiwi families and investment customers. Specializing in designing homes suited to the New Zealand lifestyle and climate, Golden Homes ensures a quality home your tenants will love. Equiti customers can trust Golden Homes for a comprehensive investment package with essential fittings and finishes, ready for tenants to move into. Owned by Dean McGuigan, we offer a 2-year Rental Guarantee, ensuring a steady income stream.

Built by

Golden Homes Canterbury