$799,500

Modern Three-Bedroom Home in Sought-After Halswell Location

Lot 38, Eccles Green, Halswell, Christchurch, Canterbury

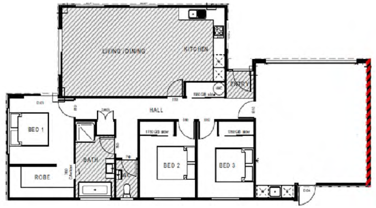
Bed 3 Bed
Bath 1 Bath
Garage 2 Garage
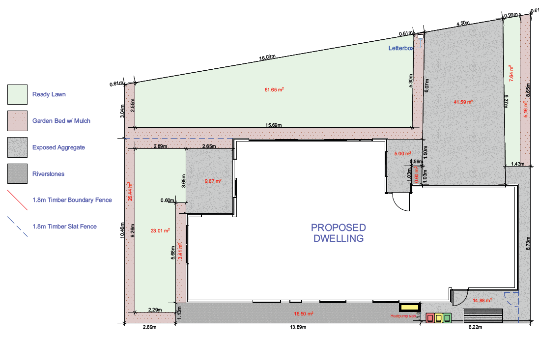
Land Size 355m² Land
Floor Size 137m² Floor
Weekly Rent $700 p/w Rent
Yield 4.6% Yield

Property details

Property ID: E539353758191 | House | Land And Build

This well-designed three-bedroom home offers modern comfort and thoughtful features throughout. The master bedroom includes a spacious walk-in wardrobe, while the contemporary family bathroom and separate toilet provide convenience for busy households. The stylish kitchen is equipped with a premium Bosch appliance package, complemented by a stone benchtop, soft-close drawers, and a sleek tiled splashback. A generous double garage with integrated laundry adds practicality, and the property comes with a reassuring 24-month maintenance period for peace of mind.

Eccles Green is located in the very sought after suburb of Halswell and is situated parallel to Sparks Road with the entry point off Sutherlands Road.  All of your local shops, schools and recreation centres will be right on your doorstep.  The Halswell New World Supermarket, a number of primary schools, Halswell pool and library are only a two minute drive from Eccles Green. A short walk around the corner is Halswell Quarry Park which includes a popular dog park, historic sites and combination of walk ways and mountain bike tracks. Christchurch's city centre is a quick 15 minute drive from Eccles Green.

At Freedom Built, they go above and beyond to make the building process stress-free, working as one team with their clients and community. Guided by integrity, accountability, and trust, they take pride in building quality homes for everyday Kiwis while giving back to the communities they are a part of.

Built by

Builders Logos for Equiti Website (2)