Under Contract

$499,000

Easy-Care Living with Style and Convenience

Unit 17, 3 Raukawa Street, Stokes Valley, Lower Hutt, Wellington

Bed 2 Bed
Bath 1.5 Bath
Carpark 1 Carpark
Land Size 74m² Land
Floor Size 73m² Floor
Weekly Rent $635 p/w Rent
Yield 6.7% Yield

Property details

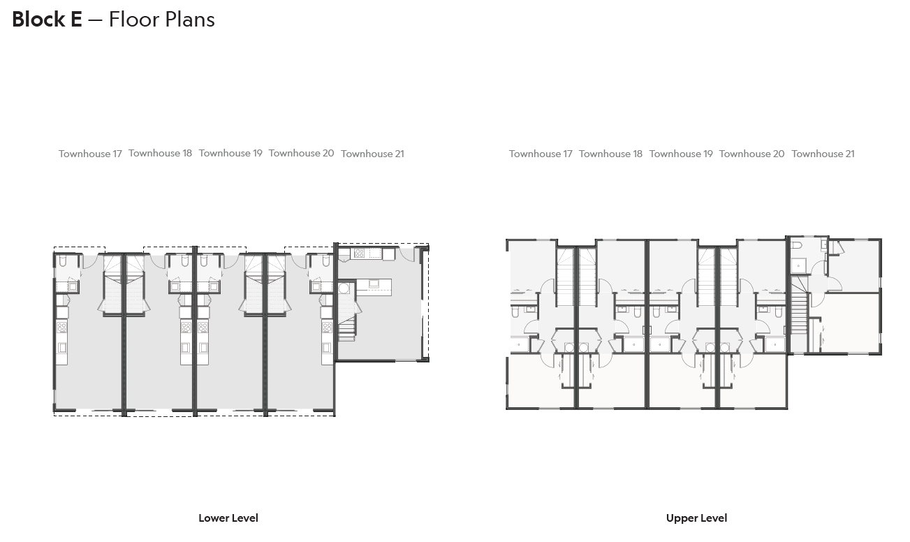
Property ID: E667486259650 | Townhouse | Turnkey

This boutique development of 21 thoughtfully designed two and three bedroom townhomes offers a blend of modern style and everyday practicality. Each residence is finished with quality stone benchtops in both the kitchen and laundry, complemented by sleek Panasonic appliances that enhance functionality and ease of use. Light-filled interiors are paired with double glazed aluminium windows for year-round comfort, while integrated laundry packages add a layer of convenience to daily living. Outside, easy-care outdoor areas provide the perfect balance of space and low-maintenance living, making these homes an ideal choice for a range of lifestyles. 

Welcome to 3 Raukawa Street – set in the beautiful Stokes Valley mid-way between Lower & Upper Hutt Valley. Stokes Valley has plenty on offer – including local schools, kindergartens and many local parks, tracks & reserves. Surrounded by native bush with peaceful streets, Stokes Valley is popular with growing families and is only a stone’s throw away from the CBD of both cities.

 Founded on hard work and a strong local reputation, Faisandier is a family-run construction business committed to doing things differently. With a focus on multi-unit residential developments, they specialise in delivering thoughtfully designed, high-quality townhouses tailored for modern Kiwi living. More than just building houses, Faisandier is dedicated to creating homes that reflect the needs and lifestyles of today’s homeowners, offering smart design, low-maintenance living, and excellent value in well-connected urban locations. Known for their people-first approach, they aim to challenge the traditional perception of developers by acting as a trusted partner throughout the entire property journey, from first steps to final settlement. With a strong emphasis on guidance, transparency, and support, Faisandier ensures buyers feel confident and empowered every step of the way.