Under Contract

$808,000

Spacious Family Living with Dual Living Areas

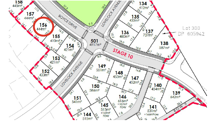
Lot 156, Broadfield Grange, Rolleston, Selwyn, Canterbury

Bed 4 Bed
Bath 2 Bath
Garage 2 Garage
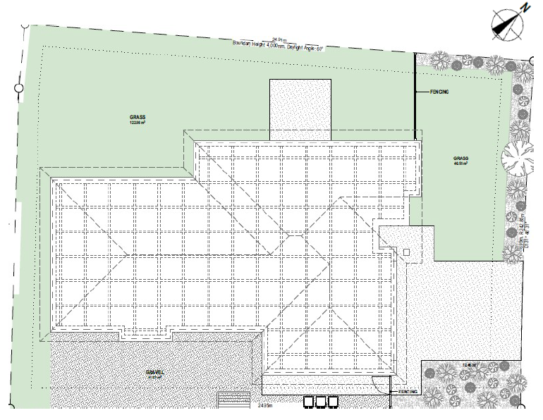
Land Size 444m² Land
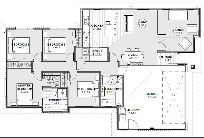
Floor Size 162m² Floor
Weekly Rent $680 p/w Rent
Yield 4.4% Yield

Property details

Property ID: E660998502895 | House | Turnkey

This well-appointed home offers the perfect blend of space, comfort, and functionality, ideal for families or those seeking flexible living options. Featuring four bedrooms and two bathrooms, the master suite serves as a private retreat complete with a walk-in wardrobe and ensuite, while the remaining bedrooms are generously sized and include ample closet space, complemented by a convenient linen cupboard for additional storage. At the heart of the home, the spacious kitchen boasts a stone benchtop with a peninsula suitable for bar seating, and a walk-in pantry, flowing seamlessly into the open-plan living and dining area to create a welcoming hub for everyday living and entertaining. A separate lounge provides an additional space to relax or unwind, while the double car garage with integrated laundry adds practicality and further storage, ensuring the home caters effortlessly to modern lifestyles. This home is also available as a home and land package for $773,000.

Located in the thriving community of Rolleston, this property is close to excellent schools, parks, and local amenities, with easy access to Christchurch. Rolleston continues to be one of Canterbury’s most desirable locations for modern living and investment.

Proudly built by Today Homes, this property showcases outstanding craftsmanship and attention to detail. With a reputation for delivering high-quality homes, Today Homes ensures every property is built to the highest standard, providing peace of mind and long-term value for homeowners and investors alike.

Built by

Today Homes