$900,500

Easy Modern Living Just 20 Minutes from Christchurch

Lot 781, Wilfield Rise, West Melton, Selwyn

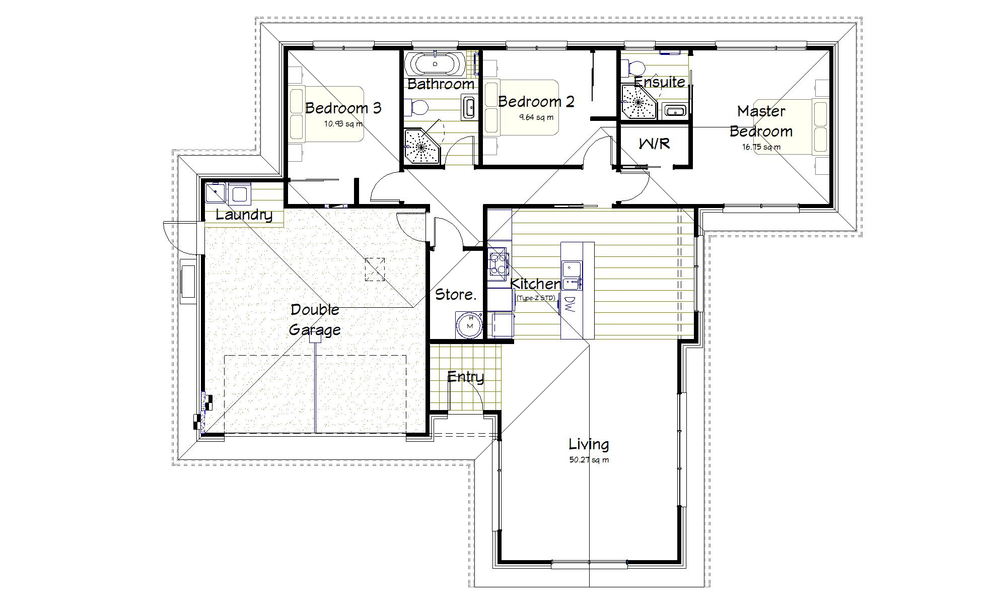
Bed 3 Bed
Bath 2 Bath
Garage 2 Garage
Land Size 471m² Land
Floor Size 168m² Floor
Weekly Rent $690 p/w Rent
Yield 4.0% Yield

Property details

Property ID: E658119168487 | House | Land And Build

This well-designed home offers comfortable modern living with a practical and functional layout. Featuring three bedrooms and two bathrooms, the master suite provides a relaxing retreat complete with a generous wardrobe and private ensuite. The family bathroom is thoughtfully appointed with both a bath and separate shower, ideal for families or guests. At the heart of the home, the open-plan kitchen, dining, and living area creates a welcoming space for everyday living and entertaining. The contemporary kitchen is finished with a durable TriStone benchtop and quality Fisher & Paykel appliances, combining style with reliable performance. Additional features include a large hallway storage cupboard for added convenience, a dedicated laundry area located within the double garage, and internal access for ease of living.

West Melton has a strong lifestyle appeal thanks to its village feel while still being just a 20-minute drive to Christchurch's CBD.  West Melton School and Rolleston College (a short drive away) are key drawcards, along with local favourites such as the West Melton Community Centre, library and sports grounds.  With cafes, a local Four Square, childcare centres and the open Canterbury Plains on your doorstep, West Melton offers space, community and convenience in one well-connected location. 

Built by Golden Homes Canterbury. For over three decades, Golden Homes has built homes loved by Kiwi families and investment customers. Specializing in designing homes suited to the New Zealand lifestyle and climate, Golden Homes ensures a quality home your tenants will love. Equiti customers can trust Golden Homes for a comprehensive investment package with essential fittings and finishes, ready for tenants to move into. Owned by Dean McGuigan, we offer a 2-year Rental Guarantee, ensuring a steady income stream.

Built by

Golden Homes Canterbury