$919,000

Move-In Ready Modern Living Under 8km to the City Centre

Lot 8, Prestons Grove Estate, Marshland, Christchurch

Bed 4 Bed
Bath 2 Bath
Garage 2 Garage
Land Size 437m² Land
Floor Size 167m² Floor
Weekly Rent $780 p/w Rent
Yield 4.5% Yield

Property details

Property ID: E648622866903 | House | Turnkey

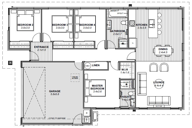
 The Wairapa floor plan offers a thoughtfully designed layout that perfectly balances space, comfort, and everyday practicality for modern family living. At the heart of the home, the open-plan kitchen, dining, and lounge area creates a seamless flow that’s ideal for entertaining or relaxed family time, complemented by a designer kitchen featuring a stone benchtop and quality BOSCH appliances. Four generous double bedrooms provide ample accommodation, with the master suite positioned as a private retreat complete with its own walk-in wardrobe and ensuite. A well-appointed family bathroom, large linen cupboard, and generous storage throughout enhance functionality, while a heat pump ensures year-round comfort. The internal access double garage incorporates the laundry for added convenience, completing this well-rounded home. 

Prestons Grove Estate is designed for those who value quality surroundings and a connected lifestyle. It’s a place where you can be connected to city, while feeling the sanctuary of a new subdivision. Located in a well-established part of Christchurch, residents enjoy close proximity to shopping centres, cafés, recreational reserves, golf courses, and quality schooling options. The nearby Bottle Lake Forest, beaches, and green spaces provide endless opportunities to explore the outdoors, while a less than an eight kilometre drive to the city centre keeps work and entertainment within reach. Whether you’re building your first home, upgrading for more space, or securing a smart investment, Prestons Grove Estate offers the opportunity to be part of a growing, sought-after community in Christchurch’s thriving north-east.

Proudly built by Today Homes, this property showcases outstanding craftsmanship and attention to detail. With a reputation for delivering high-quality homes, Today Homes ensures every property is built to the highest standard, providing peace of mind and long-term value for homeowners and investors alike.

 

Built by

Today Homes