Under Contract

$689,000

Stylish Three Bedroom Living in the Heart of Rolleston

Lot 871, Arbor Green, Rolleston, Selwyn, Canterbury

Bed 3 Bed
Bath 2 Bath
Garage 1 Garage
Land Size 260m² Land
Floor Size 113m² Floor
Weekly Rent $610 p/w Rent
Yield 4.7% Yield

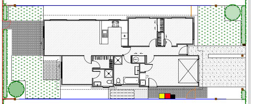
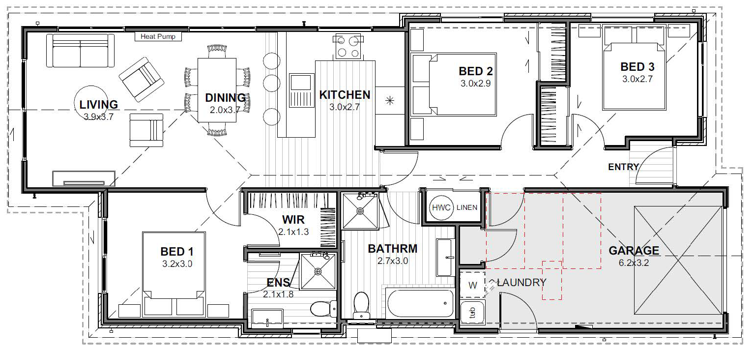
Property details

Property ID: E589533598143 | House | Turnkey

This modern three bedroom, two bathroom home is located in the sought after Arbor Green development in Rolleston and offers comfortable, well planned living. The master bedroom includes a walk in wardrobe and ensuite, while the remaining bedrooms are supported by a family bathroom and practical linen storage. The kitchen is both stylish and functional, featuring stone benchtops and quality BOSCH appliances, and flows into the open plan living and dining area. A single internal access garage adds convenience, while outside soft landscaping, concrete patio and paths, and full boundary fencing create an easy care outdoor space ready to enjoy.

Located in the thriving community of Rolleston, this property is close to excellent schools, parks, and local amenities, with easy access to Christchurch. Rolleston continues to be one of Canterbury’s most desirable locations for modern living and investment.

Proudly built by Today Homes, this property showcases outstanding craftsmanship and attention to detail. With a reputation for delivering high-quality homes, Today Homes ensures every property is built to the highest standard, providing peace of mind and long-term value for homeowners and investors alike.

 

Built by

Today Homes