$1,275,000

Modern Four-Bedroom Home with Study

Lot 4, 135 Leybourne Circle, Glen Innes, Auckland, 1072

Bed 3.5 Bed
Bath 2.5 Bath
Garage 1 Garage
Land Size 193m² Land
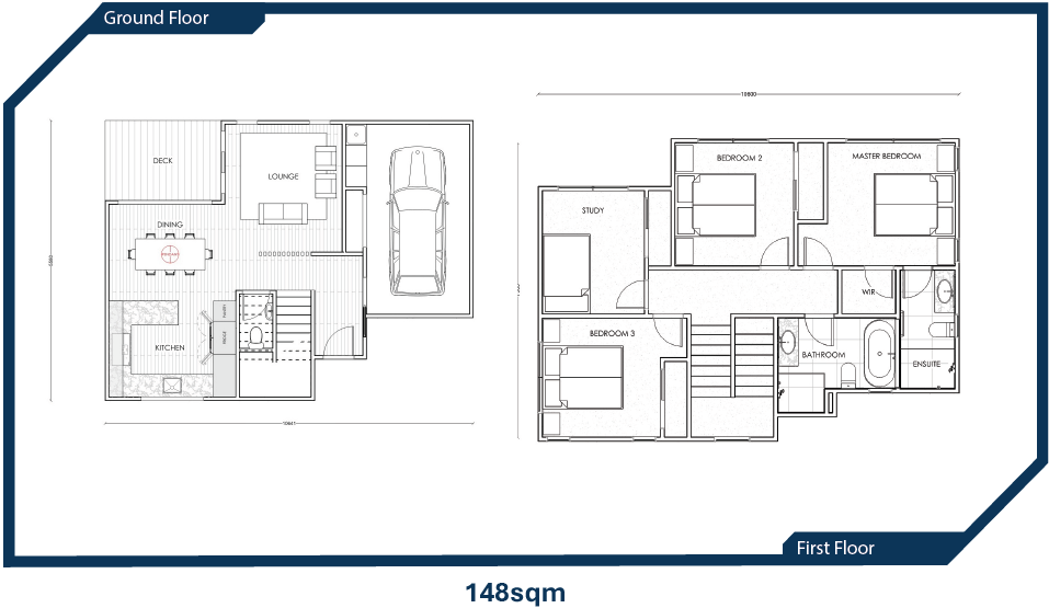
Floor Size 148m² Floor
Weekly Rent $925 p/w Rent
Yield 3.8% Yield

Property details

Property ID: E568379627965 | House | Turnkey

Haus Projects presents a thoughtfully designed development in the heart of Glen Innes. The collection comprises five residences in total, including three townhouses and two standalone homes, offering a mix of three and four-bedroom layouts. Lot 1 has been thoughtfully planned to include both a family room and a separate lounge for families, while units 4 and 5 include the added versatility of a study. Each home has been carefully considered to ensure both functionality and high-quality design. Whether buyers are entering the market for the first time or expanding their portfolio, 135 Leybourne Circle represents an exceptional opportunity to secure a brand new, well-crafted home in one of Auckland’s fastest growing suburbs. With strong community connections, ongoing infrastructure investment, and proximity to key amenities, this development offers both lifestyle appeal and long-term value.

Located on the edge of Glen Innes, 135 Leybourne Circle offers a rare balance of green space, community convenience, and excellent connectivity. The site borders Glen Dowie Reserve and sits near the scenic Point England coastline, giving residents easy access to walking trails, parks, and outdoor amenities ideal for families and active lifestyles. Everyday essentials are close at hand, including cafes, supermarkets, schools, childcare providers, and medical services. Public transport and major arterial routes offer quick and seamless travel to the Auckland CBD. As Glen Innes continues to benefit from regeneration and new investment, the location stands out as both a desirable place to live and a smart choice for future growth.

Haus Projects approaches every development with care, precision, and a dedication to quality. With extensive experience behind the team, each home is designed not only to be visually appealing but also to suit the way people live. Every layout is individually reviewed to maximise space, functionality, and flow. From floor plans to finishes, every detail is carefully considered. For both homeowners and investors, a home by Haus Projects offers intelligent design, lasting value, and the reassurance that quality has been prioritised throughout.