NZ$849,500

Tenant-Ready Golden Home

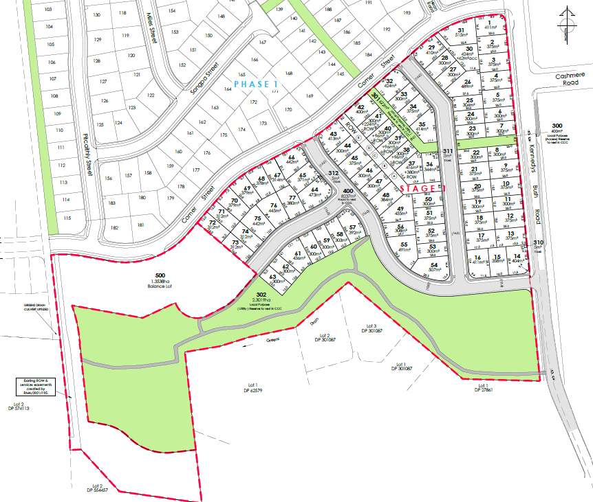
Lot 38, Kennedys Green, Halswell, Christchurch, Canterbury

Bed 3 Bed
Bath 2 Bath
Garage 1 Garage
Land Size 300m² Land
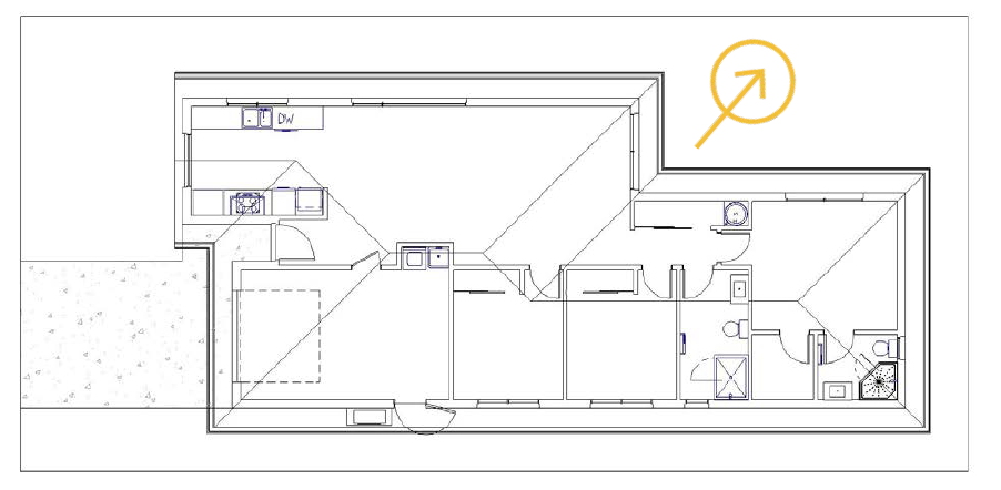
Floor Size 131m² Floor
Weekly Rent $675 p/w Rent
Yield 4.2% Yield

Property details

Property ID: E522173179385 | House | Land And Build

This stylish 3-bedroom, 2-bathroom home is move-in ready and designed for easy living. The contemporary kitchen is fitted with premium Fisher & Paykel appliances and a sleek Tristone benchtop, perfect for everyday cooking or entertaining. Three well-proportioned bedrooms include a master with ensuite, complemented by a modern family bathroom. A single internal-access garage adds convenience and security. With a thoughtful layout and quality finishes throughout, this home is tenant-ready and ideal for families, downsizers, or investors seeking a low-maintenance property.

Kennedys Green is a superb location surrounded by natural reserves and green spaces with vast views of the Port Hills. Only steps away from Halswell Quarry Park, and Halswell School down the road, it's a fantastic new community for growing families. Only a short drive to the Halswell Shopping Centre with everyday amenities including a supermarket and chemist, along with a state of the art library, community centre and pool just across the road. The satellite towns of Tai Tapu and Lincoln are in close proximity, and Christchurch CBD is only a short 15-minute drive away.

Built by Golden Homes Canterbury. For over three decades, Golden Homes has built homes loved by Kiwi families and investment customers. Specializing in designing homes suited to the New Zealand lifestyle and climate, Golden Homes ensures a quality home your tenants will love. Equiti customers can trust Golden Homes for a comprehensive investment package with essential fittings and finishes, ready for tenants to move into. Owned by Dean McGuigan, we offer a 2-year Rental Guarantee, ensuring a steady income stream.

Built by

Builders Logos for Equiti Website